直壁型・緩傾斜型落差工の水理計算、安定・断面計算、図面作成プログラム
落差工の設計・3D配筋 Ver.3
初版リリース:2024.04.26/最新Ver.リリース:2026.03.30
- ¥209,000(税抜¥190,000)
プログラム概要
「床止めの構造設計手引き(財)国土技術研究センター 編」等に従い、直壁型及び緩傾斜型の落差工の設計計算及び図面作成を行うプログラムです。
護床工の設計については、上記文献と「土地改良事業計画設計基準設計「頭首工」 令和6年3月 農林水産省」から選択可能です。
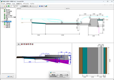
直壁型(本体・水叩き一体式構造、分離式構造)および緩傾斜型の形状タイプについて対応しています。
水理計算は、実流量か単位幅流量で行うかを選択できます。
実流量で計算する場合には、各断面位置(上流部、中流部、下流部)ごとに使用する平均流速公式の設定が可能です。
安定計算は、直接基礎(転倒・滑動・地盤支持力)、杭基礎(鉛直支持力・水平変位・杭体の断面計算)について照査を行います。
また、直壁型(一体式構造)で鉄筋コンクリート部材の場合は、本体と水叩き部について、断面計算(曲げ応力度、せん断応力度)を行うことが可能です。
※杭基礎の検討には別売の基礎製品との連動が必要です。
Ver.3.0.0 改定内容<2026年 3月 30日リリース>NEW
- 直壁型分離式構造の形状拡張(分離面勾配、段差)
- 照査内容の選択に対応
- F8-AI® UCサポート機能
関連情報
- ◆新バージョン製品紹介
- 落差工の設計・3D配筋 Ver.3(Up&Coming '26 新年号掲載)NEW
- ◆関連セミナー
- 河川シリーズ体験セミナー
プログラムの機能と特長
特長
-
- 一般的な形状の落差工(直壁型、緩傾斜型)について、水理計算及び安定計算、図面作成を行うことが可能です。
- 直壁型の場合は本体・水叩き一体式構造と分離式構造(分離面勾配、段差)を選択可能です。
- 基礎形式は直接基礎と杭基礎(別売の基礎製品との連動が必要)に対応しています。
- 護床工の区間長及びブロック重量の算定を行うことが可能です。
- 本体・水叩き一体式構造の場合は、断面計算(許容応力度法による照査)を行うことが可能です。
- 安定・断面計算の荷重ケースは、常時/洪水時/地震時について行うことができます。また、検討水位は3ケースまで指定可能です。
- 本体・水叩きの照査位置は任意の位置を3個所まで指定することが可能です。また、それぞれの照査位置で配筋を入力することができます。
- 水理計算は実流量か単位幅流量で行うかを選択することができます。
実流量で計算する場合には、各断面位置(上流部、中流部、下流部)ごとに使用する平均流速公式の設定が可能です。
平均流速公式は、レベル1(単断面),レベル1a(単断面),レベル2(複断面),レベル2a(複断面),レベル3(複断面)に対応しています。 - 落差工本体及び水叩き部の形状を自動的に決定することが可能です。
- 直壁型かつ一体式構造の場合は本体及び水叩き部の配筋を自動的に決定することが可能です。
- 水理計算を実行すると、メイン画面の形状図に水位ラインを描画します。
- 計算書は、画面上でのプレビュー機能の他、Word,HTML,テキスト出力を行うことも可能です。
適用範囲
-
落差工の形式 直壁型,緩傾斜型 構造形式 一体式構造,分離式構造(分離面の勾配,段差対応) 基礎形式 直接基礎、杭基礎(連動) コンクリート材質 鉄筋コンクリート,無筋コンクリート 平均流速公式 レベル1(単断面),レベル1a(単断面)
レベル2(複断面),レベル2a(複断面),レベル3(複断面)水理計算 ■水叩きの検討(※直壁型時)
・越流状態の判断,越流落下範囲,水叩きの必要厚さ
■しゃ水工の根入長
・必要しゃ水工長護床工の設計
(床止め構造設計手引き)
「河川砂防技術基準 設計編 床止め 令和4年6月改訂版 国土交通省」■護床工の検討
・護床工A区間長
・護床工B区間長
■補助構造物
・補助構造物の高さ
・補助構造物に加わる抗力
■護床工のブロック重量
・上流側
・護床工A(本体直下流~跳水発生区間前半、跳水発生区間後半)
・護床工B護床工の設計
(土地改良事業計画「頭首工」)■流水領域の判定
・I の領域~IVの領域
■護床工の検討
・護床工上流側区間長l1
・護床工下流側区間長l2
■護床工のブロック重量
・上流側
・護床工上流側区間
・護床工下流側区間安定計算 ■直接基礎
転倒,滑動,地盤支持力
■杭基礎(※連動する基礎製品側で照査)
鉛直支持力,水平変位,杭体の断面計算断面計算 コンクリートの圧縮応力度,鉄筋の引張応力度,せん断応力度
図面生成、3D配筋
-
本製品では、設計したモデルの図面生成および3D配筋生成に対応しています。図面生成機能では、一般図から配筋図、組立図、加工図、鉄筋表などの図面を一括生成し、SXF、DXF、DWG等の各種2次元図面ファイルへの出力も可能です。さらに、3D配筋生成機能では、躯体および鉄筋を実寸の3Dモデルとして生成しますので、2次元図面ではわかりにくい配筋の状態や、鉄筋同士の干渉を視覚的に確認することができます。昨今BIM/CIM適用の実施により3次元モデルの活用が求められていますが、本機能により設計照査から3次元モデルの作成まで一貫して行うことが可能です。また、生成された3次元モデルは、標準規格のIFC形式をはじめとした各種3次元モデルのファイル形式で出力が可能です。
適用基準及び参考文献
- 適用基準
-
国土交通省 河川砂防技術基準 設計編 技術資料 第1章 第6節 床止め 令和4年6月改定版 農林水産省 土地改良事業計画設計基準設計「頭首工」 令和6年3月 (財)国土技術研究センター 床止めの構造設計手引き その他 建設省河川砂防技術基準(案)同解説 設計編 山海堂 平成19年7月改訂版 建設省河川局監修
河川構造物の耐震性能照査指針・解説―Ⅳ.水門・樋門及び 堰編― 令和2年2月(令和2年6月一部追記) 国土交通省水管理・国土保全局
- 参考文献
-
(社)日本道路協会 道路橋示方書・同解説 Ⅳ下部構造編 平成24年3月
杭基礎設計便覧 平成27年3月
製品価格
サブスクリプションサービス 契約価格
-
■サポート内容
・バージョンアップ無償提供 ・電話問合せテクニカルサポート
・問合せサポート(電子メール、FAX) ・ダウンロードサービス ・保守情報配信サービス
※ライセンス管理コスト削減、製品ご利用形態ニーズ多様化への対応を充実させることを目的として、従来の保守・サポート形態からより便利な、「サブスクリプションサービス」へ順次移行いたします(2016年4月1日~)。
価格は税込表示です
対象製品 初年度 2年目以降 落差工の設計・3D配筋 Ver.3 ¥209,000(税抜¥190,000) ¥104,500(税抜¥95,000) ■サブスクリプションフローティング価格
上記サブスクリプション価格の40%を追加いただくことで、誰でも、どこでも、どのPCでも製品の利用が可能となります。
製品 価格 2年目以降 サブスクリプション
フローティング落差工の設計・3D配筋 Ver.3 ¥83,600(税抜¥76,000) ¥146,300(税抜¥133,000)
■サブスクリプション料率変更に関する価格体系改訂のご案内
2025年7月1日より、F8-AI® UCサポートを実装した製品は、サブスクリプション価格を製品定価の50%(上表)に改訂いたします。
■落差工の設計・3D配筋 Ver.2ユーザ様対象のサブスクリプション更新価格について
初回更新に限り、Ver.3へのエンハンスト(Ver.2とVer.3の本体価格の差額)および新サブスクリプション契約での更新となります。
エンハンスト費用
:¥11,000(税抜¥10,000)
エンハンスト費用フローティングあり
:¥15,400(税抜¥14,000)
レンタルライセンス/レンタルフローティングライセンス価格
■レンタルライセンス:短期間での利用により、低廉な価格でのライセンス利用が可能
■レンタルフローティングライセンス:ライセンスの認証をWeb経由で受ければ、誰でも、どこでも、どのPCでも製品の利用が可能
■レンタルアクセス:既に購入済みの製品の利用ライセンス数を増やす事が可能です。事前契約により、レンタルライセンス期間(1ヵ月~3ヵ月)の単位で自動的にライセンスが付与されます。利用実績に応じて後日請求いたします。事前申込価格として、レンタルライセンス価格の15%引きとなります。ユーザ情報ページにてお申込みいただけます。
※サービス強化、利便性向上を図る目的で「レンタルライセンス/レンタルフローティングライセンス」を2007年9月3日より提供を開始しました。
※レンタルライセンス/レンタルフローティングライセンス開始後の期間変更は出来ません。期間延長の場合は再申込となります。
レンタルライセンス/レンタルフローティングライセンス
-
価格は税込表示です
■レンタルライセンス
対象製品 2ヶ月 3ヶ月 6ヶ月 落差工の設計・3D配筋 Ver.3 ¥94,050 ¥110,770 ¥135,850 ■レンタルフローティングライセンス
対象製品 2ヶ月 3ヶ月 6ヶ月 落差工の設計・3D配筋 Ver.3 ¥156,750 ¥186,010 ¥229,900 製品名 アカデミー価格 落差工の設計・3D配筋 Ver.3 ¥167,200(税抜¥152,000) バージョンアップ開発履歴
バージョンアップ開発履歴
-
■バージョンアップ、リビジョンアップ(無償保守)の主な内容を一覧にしています。
旧版改訂、リバイバル版リリース時などの場合にご参考ください。
落差工の設計・3D配筋 バージョン リリース日 主なバージョンアップ内容 3.0.0 26/03/30 - 直壁型分離式構造の形状拡張(分離面勾配、段差)
- 照査内容の選択に対応
- F8-AI® UCサポート機能
動作環境
動作環境
-
OS Windows 10 / 11 CPU Intel Coreシリーズおよび完全互換のあるCPU 必要メモリ(OSも含む) OSのシステム要件を満たし、問題なく動作する環境 必要ディスク容量 32bit:約300MB以上必要(インストール時及び実行時含む)
64bit:約400MB以上必要(インストール時及び実行時含む)ディスプレイ(画面解像度) 1024×768以上 入力データ拡張子 F9W ファイル出力 HTML、3DS
F8出力編集ツール対応:TXT、HTM、 PPF、DOC、 DOCX、XLSX、XLS、PDF、 JTD、JTDC他製品との連動 <保存>
UC-win/Road(3DS、VRML)
製品購入/お問い合わせ窓口
製品購入/お問い合わせ窓口
-
■FORUM8 オーダーページで購入
製品購入 - オーダーページ にて、バージョンアップ・新規製品・各種サービスの御見積作成・申込・決済ができます。
クレジット利用や、分割払いシステムでの購入も可能です。
ご質問は、バージョンアップセンタ(vc@forum8.co.jp)までお気軽にお問い合わせ下さい。
1.適用範囲
- 製品の特長は?
-
落差工・護床工の設計計算を支援し、安定計算(直接基礎、杭基礎(別売の基礎製品との連動が必要))、断面計算(曲げ応力度、せん断応力度)、図面作成が容易に行えます。
- 落差工とは?
-
構造的に落差のある床止めをさします。また、床止めとは河床の洗掘を防ぎ、河道の勾配等の安定目的で設置される施設です。
- 主な機能は?
-
主な機能は以下の通りです。
- 一般的な形状の落差工(直壁型、緩傾斜型)について、水理計算及び安定計算、図面作成を行うことが可能
- 直壁型の場合は本体・水叩き一体式構造と分離式構造を選択可能
- 護床工の区間長及びブロック重量の算定を行うことが可能
- 本体・水叩き一体式構造の場合は、断面計算(許容応力度法による照査)を行うことが可能
- 安定・断面計算の荷重ケースは、常時/洪水時/地震時について行うことができます。また、検討水位は3ケースまで指定可能
- 本体・水叩きの照査位置は任意の位置を3個所まで指定することが可能です。また、それぞれの照査位置で配筋を入力可
- 水理計算は実流量か単位幅流量で行うかを選択可
- 落差工本体及び水叩き部の形状を自動的に決定することが可能
- 直壁型かつ一体式構造の場合は本体及び水叩き部の配筋を自動的に決定することが可能
- 適用基準は?
-
国土交通省 河川砂防技術基準 設計編 技術資料 第1章 第6節 床止め 令和4年6月改定版 農林水産省 土地改良事業計画設計基準設計「頭首工」 令和6年3月 (財)国土技術研究センター 床止めの構造設計手引き (社)日本道路協会 道路橋示方書・同解説 Ⅳ下部構造編 平成24年3月 その他 建設省河川砂防技術基準(案)同解説 設計編 山海堂 平成19年7月改訂版 建設省河川局監修
河川構造物の耐震性能照査指針・解説―Ⅳ.水門・樋門及び 堰編― 令和2年2月(令和2年6月一部追記) 国土交通省水管理・国土保全局




