柔構造樋門の本体(本体縦方向、本体横方向)と付属構造物
(門柱、胸壁、翼壁、しゃ水工)の設計計算、図面作成プログラム
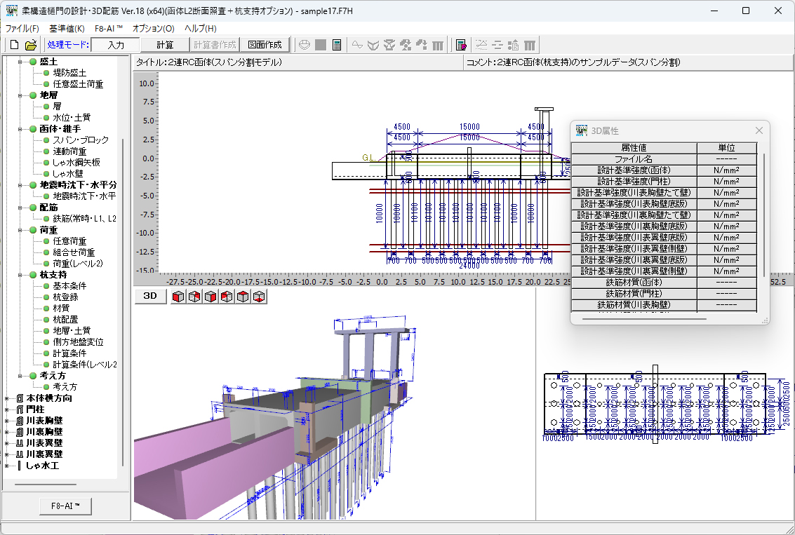
柔構造樋門の設計・3D配筋 Ver.18
初版リリース:2006.10.11/最新Ver.リリース:2025.10.31
- 柔構造樋門の設計・3D配筋 Ver.18
- ¥462,000(税抜¥420,000)
- 函体縦方向レベル2断面照査オプション
- ¥88,000(税抜¥80,000)
- 杭支持オプション
- ¥190,300(税抜¥173,000)
関連製品
Engineer's Studio®
Geo Engineer's Studio
弾塑性地盤解析(GeoFEAS) 2D
圧密沈下の計算
3Dパラメトリックツール水工
CAD統合
3D配筋
電子納品
SXF3.1
IFC
3D PDF
プログラム概要
柔構造樋門本体の縦方向・横方向、門柱、胸壁、翼壁、しゃ水工の設計計算、図面作成プログラムです。門柱における河川構造物の耐震性能照査指針・解説(R2.2)での静的照査法にも対応しています。樋門本体と付属構造物(門柱、胸壁、翼壁)の配筋図、構造一般図、数量計算書を作成可能です。
Ver.18.0.0 改訂内容<2025年 10月 31日リリース>NEW!
- 層厚0のモデル化への対応
- Eom算出時の影響する深さの取り扱いの指定への対応
- F8-AI™ UCサポート機能への対応
- 杭基礎設計便覧H27への対応
関連情報
- ◆新製品情報
- 柔構造樋門の設計・3D配筋 Ver.18(Up&Coming '25 秋の号掲載)NEW!
- ◆サポートトピックス
- Mu算出時の軸力適用範囲外エラーについて(Up&Coming '22 盛夏号掲載)
- 沈下量計算時の等分布荷重について(Up&Coming '19 新年号掲載)
- ◆関連セミナー
- 柔構造樋門の設計・3D配筋セミナー
プログラムの機能と特長
特長
-
- メインウィンドウに平面図および側面図表示の描画が可能で、入力条件をリアルタイムに確認しながらの設計が可能です。
- メイン画面左側に配置されたツリーの上部より順に入力いただくことにより、入力漏れなどを防ぎます。構造物毎に入力して計算実行後に結果を表示します。
- 図表混じりのわかりやすい結果確認表示、計算書出力を行います。また、計算書は、テキスト、HTML、doc等のファイル出力が可能です。
- 付属構造物(門柱、胸壁、翼壁、しゃ水工)を含めた樋門設計を行うことが可能です。
計算機能
-
- 地盤反力係数算定
- 柔構造樋門 設計の手引きに準拠した多層地盤の換算変形係数算出式を用い、地盤の即時沈下および側方変位算定用Esm、地盤反力係数算定用Eomの計算に対応。
- 地盤変位量計算
- 即時沈下量計算、圧密沈下量計算(Δe法、Cc法、mv法)、側方変位量計算、残留変位量照査、GeoFEAS2Dの計算結果(変位量)読込に対応
- GeoFEAS2Dデータの沈下量読込機能に傾斜地層対応
- 本体縦方向の計算
- 本体縦方向の計算(河川構造物の耐震性能照査指針・解説 耐震設計レベル2)
- 柔構造樋門本体の計算(キャンバー盛土を考慮した計算が可能、相対変位量照査)
- 直接基礎(剛支持)樋門本体の計算
- 継手の照査(可とう性継手:開口、目違い、折れ角、カラー継手:クリアランス、開口)
- 設計施工マニュアル(案) H15.東北地整に準拠したカラー継手計算に対応
- 地盤反力度の照査
- RC函体応力度照査(円形函体も同様):ブロックごとに曲げおよびせん断応力度照査
- PC函体応力度照査:単スパン緊張、全スパン緊張(パッシブテンション)の双方に対応した応力度照査
- 均しコンクリート厚の計算、形状入力拡張、斜引張鉄筋の入力、計算が可能
- 剛支持モデルにおける相対変位量、水平変位量、水平方向の地盤バネ反力の計算に対応
- 剛支持時における鉛直土圧(盛土荷重)の自動載荷機能に対応
- 直接支持頂版なしモデルの応力度計算に対応
- 本体横方向の計算
- 本体縦方向の入力データ(函体形状、函体寸法データ)を連動可能
- 道路土工カルバート工指針 平成21年度に準拠した断面照査に対応
- 円管(ダクタイル鋳鉄)、RC巻立函体(矩形換算)の計算に対応
- 温度荷重、隅角部集中格点の計算に対応
- 曲げ応力度照査時にハンチの影響を考慮するように対応
- 門柱の設計
- 門柱構造形式 : 1門柱、2門柱
- 横方向ケース数 : 常時、地震時の2ケース
- 縦方向ケース数 : 常時、地震時毎に最大5ケース定義可能
- 横方向、縦方向の任意荷重ケース : 最大10ケース定義可能
- 地震時温度荷重に対応(建設省河川砂防技術基準(案)同解説書設計編[ I ]準拠)
- ゲート高、管理橋の設置オフセットの考慮に対応
- 本体縦方向への連動荷重対応
- 胸壁の設計
- 胸壁形状 : 逆T型、L型
- 背面土形状 : 最大で3段
- 検討ケース : 常時、地震時毎に最大5ケース定義可能
- 地盤反力度 : つま先版、かかと版の端部に対し、常時、地震時毎に最大5ケース定義可能。複数ケースの一括取得に対応。
- ※本体縦方向設計から地盤反力度を連動可能。
- 揚圧力にしゃ水鋼矢板を含む計算対応
- つま先版、かかと版ごとにLの入力、断面力計算、本体縦方向への連動荷重の計算に対応
- 翼壁の設計
- 堤防保護部の設計に対応
- 浮き上がりの全体及び、堤防保護部かかと版範囲での計算に対応
- 地震時の土圧を主働土圧で計算可能(国交省 関東地方整備局等の設計基準)
- 翼壁形状 : 逆T(L)型、U型、U型張り出し
- U型翼壁の側壁2点折れに対応
- 逆T翼壁の土圧直接入力対応
- 逆T型翼壁、および堤防保護部に限り、背面土砂形状に段差形状を設定することが可能
- 検討ケース数 : 常時、地
- 震時毎に最大5ケース
- 浮上がり検討タイプ : 片側(1基)・全体(2基) ※逆T式翼壁設計時のみ
- 逆T型翼壁の浮き上り検討時の水叩き幅の選択機能
- 河川構造物設計の手引き(案) 平成19年3月 国土交通省関東地方整備局に準拠した常時の土圧クーロン式に対応
- しゃ水工設計
- 浸透流の影響に対する検討
鉛直、水平毎に浸透流による影響に対する検討が可能 - 付属設計とのデータ連動機能
- 門柱の設計ならびに胸壁の設計において、検討された荷重を、本体縦方向データ(「連動荷重」)内に連動が可能
- 胸壁の設計およびしゃ水工の設計入力時においては、本体縦方向からのデータ(地盤反力度、経路長)連動が可能
適用範囲
-
- 本体縦方向設計
- 本体横方向設計(RC函体に限り、本体横方向の設計に対応)
- 門柱の設計
- 胸壁の設計
- 翼壁の設計
断面構造形式 矩形RC函体
矩形PC函体(1連、2連BOX)
円形函体(鋼管、RC巻立、コンクリート管、ダクタイル鋳鉄管、ヒューム管、高耐圧ポリエチレン管)
三面水路
門柱レス
2連函体の内空幅変化
翼壁を含んだモデル化にも対応緊張方法 単スパン、全スパン緊張(パッシブテンション) 継手形式 可とう性継手、カラー継手、弾性継手(バネ値入力)、継手なし
(弾性継手は継手毎にバネ指定可)スパン、ブロック数 最大50スパン、最大10ブロック/スパン
※ブロックごとに断面を定義することが可能です。盛土ブロック数 最大20ブロック 地層数 最大20層 しゃ水鋼矢板設置数 最大50 ※鉛直バネ値(軸方向バネ定数)を算出することが可能です。 縦方向FRAME解析の荷重ケース数 ・基本荷重ケースとして、任意荷重ケースを常時、地震時ごとに最大5ケースまで設定可能。
・組合せケース(検討ケース)として、常時、地震時ごとに最大5ケースまで設定可能。
本体縦方向の入力データ 函体形状、函体寸法データを連動することが可能。 死荷重(水位) 最大5ケースまで指定可能。
・死荷重は、外水位、内水位とも個別に任意の高さを指定可能。
・活荷重は、T荷重を自動生成し、1ケース10荷重まで指定可能。
・活荷重は、土被りの制限値(4.0m以上/未満)に準じて載荷可能。活荷重 最大5ケースまで指定可能。
門柱構造形式 1門柱、2門柱 横方向ケース数 常時、地震時の2ケース 縦方向ケース数 常時、地震時毎に最大5ケース定義可能。 横方向、縦方向の任意荷重ケース 最大10ケース定義可能。 横方向FRAME解析の荷重ケース数 最大7ケースの任意荷重ケースを定義可能。
定義された任意荷重ケースは、常時・地震時のいずれかの検討ケースに振り分ける。
胸壁形状 逆T型、L型 背面土形状 最大で3段 検討ケース 常時、地震時ごとに最大5ケースまで指定可能 地盤反力度 つま先版、かかと版の端部に対し、常時・地震時の5ケース
※本体縦方向設計から地盤反力度を連動可能です。
翼壁形状 翼壁形状 逆T(L)型、U型、U型張り出し、U型底版傾斜 検討ケース数 常時、地震時ごとに最大5ケースまで指定可能 浮上がり検討タイプ 片側(1基)・全体(2基) ※逆T式翼壁設計時のみ
函体縦方向レベル2断面照査オプション
-
-
- 矩形RC函体(1連、2連)の本体縦方向レベル2照査に対応
- 曲げ耐力、せん断耐力、継手(開口、目違い)を照査
- Geo Engineer’s Studio、および弾塑性地盤解析(GeoFEAS®)2D用の地盤解析用地形データファイルの保存と、これらの製品の計算結果(変位量)の読込みに対応
- Engineer's Studio®の入力データファイルの保存に対応
-
杭支持オプション
-
-
- 杭支持モデルの設計(L1許容応力度法、L2)に対応
- 杭種:鋼管杭、RC杭、PHC杭、場所打ち杭、SC杭、SCPHC杭、鋼管ソイルセメント杭、回転杭、PC杭に対応
- 各スパン、ブロックの縦方向座標ごとに杭種、杭長、杭本数等を指定可能
- RC杭、PHC杭、SC杭、PC杭は杭基礎設計便覧から断面定数等を参照
- 杭支持モデルは常時、L1地震時、L2地震時を弊社製品「Engineer's Studio®」の計算エンジンを利用して解析
- 杭の軸方向バネ定数Kvの直接指定機能追加
-
図面作成
-
- 作図対象
-
「標準部函体・門柱部・川裏側函体端部・胸壁(川表側/川裏側)・翼壁(川表側/川裏側)」の一般図および配筋図を作図します。また、一般図には、しゃ水壁・胸壁・翼壁部に設置するしゃ水工(鋼矢板)も作図します。本体縦方向のレベル2の配筋図出力に対応しました。

標準部函体 矩形RC函体(1連/2連ボックスカルバート) 端部函体(川表側/川裏側) 矩形RC函体(1連/2連ボックスカルバート)
2連の場合、端部拡幅対応可能門柱/端部函体 1門/2門柱、端部函体(1連/2連拡幅対応)、操作台 胸壁(川表側/川裏側) 逆T型/L型胸壁、鋼矢板によるしゃ水工 翼壁(川表側/川裏側) 側壁(U型/逆T型)、先端壁(L型/逆T型)翼壁、水叩き部 しゃ水壁 逆T型/ I 型しゃ水壁、鋼矢板によるしゃ水工 継ぎ手 矩形巻き立てカラー継ぎ手
- 鉄筋配置
-
標準部函体 横方向主鉄筋、縦方向主鉄筋、スターラップ 側端部函体 函体部 横方向主鉄筋、縦方向主鉄筋、スターラップ ゲート部鉄筋 外面鉄筋、内面鉄筋(側壁/中壁)、帯鉄筋(側壁/中壁)、ハンチ筋
横鉄筋(頂版/底板)、底版鉄筋、組立筋土留め壁部鉄筋 主鉄筋、配力筋、天端筋、組立筋 操作台鉄筋 横方向主鉄筋、縦方向主鉄筋、組立筋 門柱鉄筋 外周鉄筋、内面鉄筋(側壁/中壁)、帯鉄筋、ハンチ筋 側胸壁 たて壁主鉄筋、たて壁配力筋、天端筋、底版主鉄筋、底版配力筋、組立筋 側翼壁 側壁(外面/内面)主鉄筋、側壁(外面/内面)配力筋、天端筋、底版主鉄筋、底版配力筋、組立筋、ハンチ筋 しゃ水壁鉄筋 たて壁主鉄筋、たて壁配力筋、組立筋 カラー継手 横方向鉄筋、帯鉄筋 - 数量計算書及び数量表
-
「図面作成モード」の入力と数量計算書の出力設定(名称・桁数・まるめ方法)を行うことにより、各部のコンクリート体積、型枠面積、鉄筋質量、鋼材質量を算出し、数量計算書を作成します。数量計算書には総括表、躯体寸法及び数量算出過程を記述します。
- その他
-
- 国土交通省「CAD製図基準(案)」、NEXCO「CADによる図面作成要領(案)」に対応。
- CADデータ交換標準SXF Ver3.1形式、DXF・DWG形式、JWW・JWC形式のファイル出力が行えます。また、ソリッドモデルの3DS出力にも対応しています。
適用基準及び参考文献
-
(一財)国土開発技術研究センター 柔構造樋門設計の手引き 平成10年11月 国土交通省 河川構造物の耐震性能照査指針・解説 令和2年2月
河川砂防技術基準 設計編 技術資料 第1章第8節 樋門 令和3年3月
土木構造物設計マニュアル(案)-樋門編- 平成13年12月
土木構造物設計マニュアル(案)に係わる設計・施工の手引き(案)[樋門編] 平成13年12月(社)日本道路協会 道路土工カルバート工指針 平成11年3月
道路土工カルバート工指針 平成21年度 平成22年3月
樋門標準設計 取扱い説明書 平成15年4月
道路橋示方書・同解説 Ⅱ 鋼橋編 平成14年3月
道路橋示方書・同解説 Ⅳ 下部構造編 平成14年3月
道路橋示方書・同解説 Ⅴ 耐震設計編 平成14年3月
道路橋示方書・同解説 Ⅳ 下部構造編 平成24年3月
道路橋示方書・同解説 Ⅴ 耐震設計編 平成24年3月
杭基礎設計便覧 平成27年3月
杭基礎設計便覧 平成19年1月
杭基礎設計便覧 平成4年10月
杭基礎設計便覧 昭和61年1月その他 地震時保有水平耐力法に基づく水門・堰の耐震性能照査に関する計算例 平成20年3月(独)土木研究所
建設省河川砂防技術基準(案)同解説 設計編 [Ⅰ] 平成9年9月(社)日本河川協会
製品価格
本体価格
-
価格は税込表示です
■本体価格
製品名 価格 柔構造樋門の設計・3D配筋 Ver.18 ¥462,000(税抜¥420,000) 函体縦方向レベル2断面照査オプション ¥88,000(税抜¥80,000) 杭支持オプション ¥190,300(税抜¥173,000) ■フローティングライセンス価格
本体価格の40%を追加いただくことで、誰でも、どこでも、どのPCでも製品の利用が可能となります。
製品名 価格 柔構造樋門の設計・3D配筋 Ver.18 ¥184,800(税抜¥168,000) 函体縦方向レベル2断面照査オプション ¥35,200(税抜¥32,000) 杭支持オプション ¥76,120(税抜¥69,200)
サブスクリプションサービス 契約価格
サブスクリプションサービス 契約価格
-
■サポート内容
・バージョンアップ無償提供 ・電話問合せテクニカルサポート
・問合せサポート(電子メール、FAX) ・ダウンロードサービス ・保守情報配信サービス
※ライセンス管理コスト削減、製品ご利用形態ニーズ多様化への対応を充実させることを目的として、従来の保守・サポート形態からより便利な、「サブスクリプションサービス」へ順次移行いたします(2016年4月1日~)。
価格は税込表示です
■サブスクリプション価格
製品名 初年度 1年 柔構造樋門の設計・3D配筋 Ver.18 無償 ¥231,000(税抜¥210,000) 函体縦方向レベル2断面照査オプション ¥44,000(税抜¥40,000) 杭支持オプション ¥95,150(税抜¥86,500) ■サブスクリプションフローティング価格
製品名 初年度 1年 柔構造樋門の設計・3D配筋 Ver.18 無償 ¥323,400(税抜¥294,000) 函体縦方向レベル2断面照査オプション ¥61,600(税抜¥56,000) 杭支持オプション ¥133,210(税抜¥121,100) ■サブスクリプション料率変更に関する価格体系改訂のご案内
2025年7月1日より、F8-AI™ UCサポートを実装した製品は、サブスクリプション価格を製品定価の50%(上表)にいたします。
レンタルライセンス/レンタルフローティングライセンス価格
■レンタルライセンス:短期間での利用により、低廉な価格でのライセンス利用が可能
■レンタルフローティングライセンス:ライセンスの認証をWeb経由で受ければ、誰でも、どこでも、どのPCでも製品の利用が可能
■レンタルアクセス:既に購入済みの製品の利用ライセンス数を増やす事が可能です。事前契約により、レンタルライセンス期間(1ヵ月~3ヵ月)の単位で自動的にライセンスが付与されます。利用実績に応じて後日請求いたします。事前申込価格として、レンタルライセンス価格の15%引きとなります。ユーザ情報ページにてお申込みいただけます。
※サービス強化、利便性向上を図る目的で「レンタルライセンス/レンタルフローティングライセンス」を2007年9月3日より提供を開始しました。
※レンタルライセンス/レンタルフローティングライセンス開始後の期間変更は出来ません。期間延長の場合は再申込となります。
レンタルライセンス/レンタルフローティングライセンス
-
価格は税込表示です
■レンタルライセンス
対象製品 2ヶ月 3ヶ月 6ヶ月 柔構造樋門の設計・3D配筋 Ver.18 ¥207,900 ¥244,860 ¥300,300 函体縦方向レベル2断面照査オプション ¥44,880 ¥52,800 ¥65,120 杭支持オプション ¥85,635 ¥100,859 ¥123,695 ■レンタルフローティングライセンス
対象製品 2ヶ月 3ヶ月 6ヶ月 柔構造樋門の設計・3D配筋 Ver.18 ¥346,500 ¥411,180 ¥508,200 函体縦方向レベル2断面照査オプション ¥75,680 ¥89,760 ¥110,880 杭支持オプション ¥142,725 ¥169,367 ¥209,330 製品名 アカデミー価格 柔構造樋門の設計・3D配筋 Ver.18 ¥369,600(税抜¥336,000) 函体縦方向レベル2断面照査オプション ¥70,400(税抜¥64,000) 杭支持オプション ¥152,240(税抜¥138,400) バージョンアップ開発履歴
バージョンアップ開発履歴
-
■バージョンアップ、リビジョンアップ(無償保守)の主な内容を一覧にしています。
旧版改訂、リバイバル版リリース時などの場合にご参考ください。価格は税込表示です
柔構造樋門の設計・3D配筋 Ver.18 バージョン リリース日 主なバージョンアップ内容 18.0.0 25/10/31 - 層厚0のモデル化への対応
- Eom算出時の影響する深さの取り扱いの指定への対応
- F8-AI™ UCサポート機能への対応
- 杭基礎設計便覧H27への対応
動作環境
動作環境
-
OS Windows 10 / 11 CPU Intel Coreシリーズおよび完全互換のあるCPU 必要メモリ(OSも含む) OSのシステム要件を満たし、問題なく動作する環境 必要ディスク容量 x86(32bit):約470MB以上必要(インストール時及び実行時含む)
x64(64bit):約730MB以上必要(インストール時及び実行時含む)ディスプレイ(画面解像度) 1024×768以上 入力データ拡張子 F7H、FTG(門柱)、FTP(胸壁)、FTI(翼壁)、FTS(しゃ水工)
<旧データ>FSW、FSG(門柱)、FSP(胸壁)、FSI(翼壁)、FSS(しゃ水工)ファイル出力 HTML、VRML、3DS、PSX、SFC、P21、DXF、DWG、JWW、JWC、TSD
F8出力編集ツール対応:TXT、HTM、 PPF、DOC、 DOCX、XLSX、XLS、PDF、 JTD、JTDC他製品との連動 <読込>
圧密沈下の計算logP曲線(AMG)
弾塑性地盤解析(GeoFEAS)2D解析結果データ(TXT)
<保存>
SI対応版 F8旧製品データ($o1)
UC-win/Road(3DS、VRML)
圧密沈下の計算logP曲線(AMG)
UC-Draw・3DCAD(PSX、TSD)
弾塑性地盤解析(GeoFEAS)2D地盤解析用地形データ(GF1)
Engineer's Studio®データ(ES)備考 函体L2断面照査オプションを利用の際にはPentiumIV以上のCPUが必要
製品購入/お問い合わせ窓口
製品購入/お問い合わせ窓口
-
■FORUM8 オーダーページで購入
製品購入 - オーダーページ にて、バージョンアップ・新規製品・各種サービスの御見積作成・申込・決済ができます。
クレジット利用や、分割払いシステムでの購入も可能です。
ご質問は、バージョンアップセンタ(vc@forum8.co.jp)までお気軽にお問い合わせ下さい。
画面サンプル
PDF出力例
函体形状 :2連矩形、函体種別 :RC
門柱形式 :3柱、胸壁 : 逆T型、翼壁 : U型
▲サンプルデータ5( 562P、28,862KB )
▲サンプルデータ5(縦方向レベル2)( 332P、17,835KB )
▲サンプルデータ5(門柱レベル2)( 406P、13,620KB )
Q&A(製品評価や導入の際に役立つQ&Aです)
- 製品概要は?
-
柔構造樋門本体の縦方向・横方向、門柱、胸壁、翼壁、しゃ水工の設計計算、図面作成プログラムです。門柱における河川構造物の耐震性能照査指針・解説(R2.2)での静的照査法にも対応しています。樋門本体と付属構造物(門柱、胸壁、翼壁)の配筋図、構造一般図、数量計算書を作成可能です。本体縦方向設計と付属構造物設計間でのデータ連動機能を有しています。
- 主な機能は?
-
以下の計算・照査、および図面作成を行うことができます。
構造物 形状 断面力計算 応力度照査 本体縦方向
連動荷重計算図面作成 本体縦方向 矩形 RC函体 1連 ○ ○ ○ 2連 ○ ○ ○ PC函体 1連 ○ ○ 2連 ○ ○ 円形矩形 RC巻立 ○ ○ 鋼管 ○ ○ コンクリート管 ○ ダクタイル鋳鉄管 ○ ヒューム管 ○ 高耐圧ポリエチレン管 ○ 本体横方向 矩形 RC函体 1連 ○ ○ ○ 2連 ○ ○ ○ 門柱 1連 ○ ○ ○ ○ 2連 ○ ○ ○ ○ 胸壁 逆T型 ○ ○ ○ ○ L型 ○ ○ ○ ○ 翼壁 逆T型 ○ ○ ○ L型 ○ ○ ○ U型 ○ ○ ○ U型張り出し ○ ○ U型底版傾斜 ○ ○ 堤防保護部 ○ ○ ○ ○ - 函体縦方向レベル2断面照査オプションの機能は?
-
矩形RC函体(1連、2連)の本体縦方向レベル2照査に対応しており、曲げ耐力、せん断耐力、継手(開口、目違い)を照査します。
Geo Engineer's Studio、および弾塑性地盤解析(GeoFEAS) 2Dで読み込み可能な地盤解析用地形データファイルを保存可能です。
また、これらの製品での解析結果(変位量)の読込みに対応しています。
Engineer's Studio®形式の入力データファイルの保存に対応しています。 - 杭支持オプションの機能は?
-
矩形RC函体(1連、2連)の杭支持モデルの設計(L1許容応力度法、L2)に対応しています。照査内容は以下の通りです。
計算 照査内容 常時・レベル1 函体 ・応力度照査
・継手の照査(開口、目違い)杭体 ・応力度照査
・支持力照査
・負の周面摩擦力照査
・杭頭接合照査レベル2 函体 ・曲げ耐力照査
・せん断耐力照査
・継手の照査(開口、目違い)杭体 ・曲げ耐力照査
・せん断耐力照査杭種は鋼管杭、RC杭、PHC杭、PC杭、場所打ち杭、SC杭、SCPHC杭、鋼管ソイルセメント杭、回転杭に対応しています。
Geo Engineer's Studio、および弾塑性地盤解析(GeoFEAS) 2Dで読み込み可能な地盤解析用地形データファイルを保存可能です。
また、これらの製品での解析結果(変位量)の読込みに対応しています。
Engineer's Studio®形式の入力データファイルの保存に対応しています。 - 適用基準及び参考文献は?
- 適用基準
-
(一財)国土開発技術研究センター 柔構造樋門設計の手引き 平成10年11月 国土交通省 河川構造物の耐震性能照査指針・解説 令和2年2月
河川砂防技術基準 設計編 技術資料 第1章第8節 樋門 令和3年3月
土木構造物設計マニュアル(案)-樋門編- 平成13年12月
土木構造物設計マニュアル(案)に係わる設計・施工の手引き(案)[樋門編] 平成13年12月(社)日本道路協会 道路土工カルバート工指針 平成11年3月
道路土工カルバート工指針 平成21年度 平成22年3月
樋門標準設計 取扱い説明書 平成15年4月
道路橋示方書・同解説 Ⅱ 鋼橋編 平成14年3月
道路橋示方書・同解説 Ⅳ 下部構造編 平成14年3月
道路橋示方書・同解説 Ⅴ 耐震設計編 平成14年3月
道路橋示方書・同解説 Ⅳ 下部構造編 平成24年3月
道路橋示方書・同解説 Ⅴ 耐震設計編 平成24年3月
杭基礎設計便覧 平成27年3月
杭基礎設計便覧 平成19年1月
杭基礎設計便覧 平成4年10月
杭基礎設計便覧 昭和61年1月その他 地震時保有水平耐力法に基づく水門・堰の耐震性能照査に関する計算例 平成20年3月(独)土木研究所
建設省河川砂防技術基準(案)同解説 設計編 [Ⅰ] 平成9年9月(社)日本河川協会








